Mobile Jib Crane

Goliath Crane

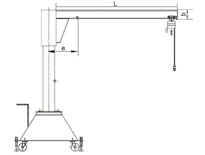
Mobile Jib Crane

A portable jib crane on wheels, designed for 0.5–2 ton lifting. Ideal for workshops, maintenance sites, and temporary material handling locations. Offers flexible positioning, easy setup, and smooth operation.

Mobile Jib Crane Features

The mobile jib crane can be operated in any direction to the desired location, and the electric hoist can traveling on the cantilever, which is suitable for occasions where the heavy object needs to carry or rotate. The lifting of the heavy object is performed by the electric hoist to perform the up and down landing. The lifting device has the characteristics of simple structure, convenient operation, flexibility, large working space, wide application range etc.

Goliath Crane Equipment

Mobile Jib Crane Application

Mobile jib crane widely used in factories, mines, workshops, field, warehouse, small equipment installation. Mobile cantilever crane application occasions: factories and mines, workshop production lines, assembly lines, mechanical processing and heavy lifting of warehouses, docks and other occasions.

Mobile Jib Crane Usage Specification

  • Operators must strictly follow the operating rules of the mobile slewing crane, fully understand the performance of the hoisting equipment, and strictly prohibit overloading operations.
  • The mobile jib crane must follow the basic principle of “no operation during lifting and no lifting during operation.”
  • Using the terminal baffle as a regular parking method is strictly prohibited.
  • Before lifting any load, all four supporting devices of the mobile slewing crane must be fully deployed and firmly supported on the ground to ensure safety.
  • When lifting heavy objects, frequent electric jogging operations of the electric hoist should be avoided as much as possible.
  • Chains or wire ropes used for lifting must have adequate strength and be securely fastened. Sharp angles should be properly cushioned, and lifting ropes must be placed at the center of the hook to prevent slipping.
  • Heavy objects must be lifted and moved strictly in a vertical position. Diagonal pulling, rotating, dragging, or impacting the lifting beam or frame is strictly prohibited.
  • In the event of equipment malfunction or an accident during operation, the power supply must be cut off immediately.
  • During lifting operations, personnel are strictly prohibited from passing or standing beneath the mobile jib crane.
  • After completing work, operators must immediately switch off the power supply of the mobile slewing crane.

Movable Jib Crane Maintenance

  • Every six months, the rotating parts of the mobile jib crane need to be lubricated once.
  • According to the situation after use, periodically brush away the accumulated material on the cross member (walking track surface) of the rotating part. Mobile jib cranes are painted once a year in the open air, and mobile jib cranes are painted once in two years to prevent corrosion.

Contact us now to get more information about Dongqi jib cranes.