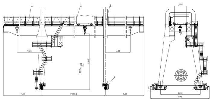
Double girder gantry crane introduction
Double girder gantry crane is heavy gantry crane with double girders, which is widely used for general purpose. Double girder gantry crane are heavy duty crane, used at indoors and outdoors places where overhead crane runways are not practical. The lifting capacity of the double girder gantry crane is 5 to 500 tons. The working class of the gantry crane is A5 and A6.
Application of Double Girder Gantry Crane
Double girder gantry crane is usually used to open warehouse or along rail for general material handling and lifting work, such as, freight yard or dock, etc.
Advantages of Double Girder Gantry Crane
- Advanced technology with delicate design and attractive appearance.
- Novel structure featuring wide span, high stability, and reliable crane performance.
- Large loading capacity combined with high working efficiency.
- Flexible operation with easy maintenance.
- Standardized, generalized, and serialized spare parts for easy replacement.
Features of Double Girder Gantry Crane
1. General features:
- All operations are conducted in the operating room.
- Grab bucket, container spreader, and other special lifting devices can be equipped for special material handling tasks.
- Customized design is available based on your specific application requirements.
- High efficiency with work class up to A5 (Medium) and A6 (Heavy).
- Three control modes available: cab control, remote control, and floor control.
2. On main body:
- Double welded box beams with camber line meeting and exceeding national standards.
- High steel strength ensuring enhanced safety.
- Manufactured using high-quality carbon steel Q235B or Q345B.
- Submerged arc automatic welding with nondestructive flaw detection applied.
- 10.9-grade high-strength bolts used to connect the end truck.
- Separated driving systems enable trinity drive, improving safety and reliability.
- End beams are equipped with buffer blocks and orbital cleaning devices.
3. On trolley part.
- The trolley mainly consists of a motor, speed reducer, brake, coupling, wheels, and coiling blocks.
- Asbestos-free brake pads and card-type brake block inserts are used for safe and reliable operation.
- Equipped with a hard-toothed surface speed reducer.
- Separate drive systems are used for trolley travelling.
- High load capacity with stable travelling and long service life.
- Derailment prevention boards are installed to ensure safety.
- Angle round box and buffer devices are provided.
- Modular design is available to meet various customer requirements.
4. Electric System
- Modular control speed with micro-speed and double-speed options available.
- Smooth travelling and lifting operations.
- Reasonably designed control box layout for easy maintenance and repair.
- High protection class rated at IP55.
- Optional main power supply configuration available.
- All external cable lines are clearly numbered for easy identification.
- Safety smooth touch line with high conductivity and low pressure drop.
- Light dead weight design for convenient installation.
5. Protection devices
- Shields and barriers are installed to prevent the hook from colliding with the top.
- Circuit self-test protection devices are provided.
- Rainproof devices are equipped for the lifting mechanism and electrical control box when the crane is used outdoors.
- Anti-collision systems with sound and light alarm devices are installed.
- Rail clamps are equipped for secure positioning.
- Lifting weight limiters, height limiters, and rail clamping devices are provided.
- Overspeed protection, zero-voltage protection, and lightning protection are included.
6. Operation devices
- Capsule driver cabin with wide viewing angle, linkage machine control, and easy operation.
- Double-block push buttons or lever-type joysticks provide smooth and accurate control.
- Remote control operation eliminates the need for a professional driver.
- Available in following type, slide-independent type, and non-following suspension options.
- Protection class rated at IP65.
- Long service life up to 500,000 operating cycles; remote control is very easy to use.
- Strong waterproof design with anti-break and impact-resistant performance.
Double girder gantry crane has the lifting capacity of 5 to 500 tons from top gantry crane manufacturer in China, Dongqi Crane. Choose your ideal gantry crane now. Contact us for more informaiton on Dongqi double girder gantry crane!




