LDP Low Headroom Overhead Crane Single Girder

Goliath Crane

LDP Low Headroom Overhead Crane Single Girder

They are designed for low height plant and factory, where the lifting room is limited but lifting height is high. The lifting capacity of the overhead crane is 1 to 32 tons whereas the lifting height is 6~20m.

Low headroom overhead crane

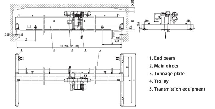
Low headroom overhead crane is an overhead crane with low headroom design for saving the working space of the overhead crane. With different lifting system, the low headroom overhead crane can be divided into low headroom hoist crane and low headroom trolley crane.The LDP type low headroom overhead crane is a light duty singl girder material handling equipment, designed for low headroom workshop application. The low headroom overhead crane is designed with special structure that the electric hoist is placed at one side of the girder so that the lifting space of hook is increased which could lower the requirement to building height and construction production costs.

Goliath Crane Equipment

Application of low headroom overhead crane

Due to its unique features and advantages, the LDP type overhead crane is widely used in the workshop where the headroom is low and the lifting height is high, such as, general machinery production workshop, assembling, and warehouse, etc.

DQCRANES lifts you up

As a materials handling equipment manufacturer and supplier, DQCRANE is here to lift you up. DQCRANES can provide you the LDP type Low Headroom single girder overhead crane with rated load 3~10 tons, span 7.5m~22.5m, and lifting height 6 ~ 2m, working class A3-A4 and the specific specifications is shown in specifications table:

Features of LDP low headroom overhead crane

  • The LDP low headroom overhead crane is designed and manufactured according to GB/T 3811-2008 and JB/T 1306-2008 standard, which ensures the quality and safety.
  • The low headroom overhead crane system is equipped with duel speed motor, which can switch between model CD1 and MD1.
  • Crane operation method: ground control, remote control, ground control + remote control;
  • Non-standard design or customized design is provided. The span length and lifting height can be customized without any limitation.

Advantages of low headroom overhead crane

  1. Electric hoist is placed at one side of girder, the lifting space is increased and therefore lower the requirement to factory height and production cost.
  2. Due to the wide tread design, tight structure, and strong rigidity, the trolley can move smoothly, quietly, and safely.
  3. Flexible operation, and high working efficiency.
  4. High reliability and safety.
  5. Delicate exterior.
  6. Cost-effective crane price.

Low headroom overhead crane, low headroom hoist crane and trolley crane are all at your service. Save your working space, lower your building production cost, and meet your material handling requirements with Dongqi low headroom series of overhead crane, the low headroom hoist crane and low headroom trolley crane.