BMH Semi-Gantry Crane

Goliath Crane

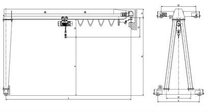
BMH Semi-Gantry Crane

A semi-gantry crane suitable for 2–50 ton lifting, combining one leg on wheels and one fixed side for space efficiency. Ideal for outdoor yards, workshops, and loading/unloading areas with limited runway space.

Semi-gantry crane Introduction

Semi-gantry crane is a small or middle scale gantry crane with one side of crane girder supported by one unilateral leg which can travel on the ground track, and the other side supported on the bracket track, which wcould save cost and space of the factory. The lifting capacity of the semi-gantry crane is 2 to 10 tons, and the working class is A3, and A4.

Goliath Crane Equipment

Application of Semi-gantry Crane

Semi-gantry crane is a regular crane, which is widely used for material handling in mechanical processing workshop, outdoor place and warehouse for loads lifting and transporting.

Components of Semi-gantry Crane

The mechanical structure of semi-gantry crane is mainly consisted of crane bridge, travelling mechanism, trolley part, and electrical part, etc.

Features of Semi-gantry Crane

  • Dual-speed hoist with CD/MD motor travelling smoothly on rails.
  • Three-in-one motor design saves more working space.
  • Customized design solutions are offered.
  • Semi-gantry crane works as a complete set with electric hoist.
  • Ideal light-duty crane for outdoor areas or workshop use.
  • Lowest limiting size between the top of the crab and trolley track, 20–30% less than traditional products.
  • High-quality electric control panel with a service life exceeding 2 million operations at 380V (±5–10%).
  • Hard-tooth surface reducer, imported wire rope, and three-in-one motor are used.
  • Alarm devices are equipped for overload and travelling protection.

How to Choose a Semi-gantry Crane for you application?

  • Choose the crane according to the application industry and the frequency of starting or pushing operations per hour.
  • Consider the practical working time of the crane per day (in hours).
  • Light-duty equipment must be clearly marked on the crane.
  • The times of starting or pushing-on are that Gn/10=80times/h, Gn/2=40times/h, and Gn/1=20times/h. When the temperature is 50celsius, it is grim environment, the times per hour should be divided two.

Attentions

  • The semi-gantry crane must be locked promptly when it stops working at the operation location.
  • No electric wires should be positioned above the main power switch of the crane.
  • The semi-gantry crane must not be used in hazardous environments, including combustible, explosive, dusty, or corrosive conditions.
  • Overloading the crane is strictly prohibited.

Semi gantry crane for sale. Various types of semi gantry cranes are available from crane manufactuer. Advanced semi gantry crane designs meet your material handling requirements. Contact us for more information on semi gantry crane now!